登录  免费注册

安阳高新区国家级示范生产力促进中心

Anyang High-tech Zone National Demonstration Productivity Promotion Center

首页 平台简介 科技成果转移转化 专利监控管理系统(RIMS) 五大产业数据库 科技创新主体展示 技术合同登记展示

书本滚轮抬升装置

发布时间:2018-07-10 08:56
  • 专利类型:发明专利
  • 日期 :2018-07-10 08:56
  • 专利名称:书本滚轮抬升装置
  • 专利权人 : 匿名
  • 联系电话 :0372-2110568

交易价格(万元):面谈

专利详情

专利类别 :发明专利 专利号 : CN201310689979.3 申请日期 : 2013-12-16 08:56
公开日期 : 专利名称 : 书本滚轮抬升装置 专利权人 :匿名
国际分类号: 暂无 范畴分类号 : 暂无 行业分类 : 暂无
详情介绍:

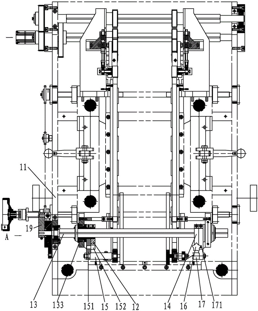
一种书本滚轮抬升装置,属于印刷机械技术领域,包括机架调整轴、进书口左滚轮轴、进书口右滚轮轴,调整轴设于机架上,进书口左、右滚轮轴分别固定于左、右安装板上,左、右安装板设置于调整轴上,调整轴的左端部固定有锁紧板,锁紧板上设有拨动块,机架上固定有固定板、调整座,调整座包括上、下板及连接上、下板的连接板,上板底面上固定有上压块,下板和固定板之间贯穿有调整销轴,调整销轴可相对下板及固定板上下移动,调整销轴上端固定有下压块,下板上连接有调整扳手,调整板与所述调整销轴相连接,调整板可带动调整销轴上下移动,调整销轴上套有回位弹簧。本发明书本滚轮抬升装置,可根据所传输的书本厚度准确抬升滚轮,并且使用更方便。

服务流程

服务流程

买方卖方

身份 买家提供 卖家提供 交易服务 过户后您将会获得
企业

企业申请

执照

企业营业执照

组织机构代码证

执照

企业营业执照

专利证书证件

专利代理委托书
专利权转让协议
办理文件副本请求书
发明人变更声明

专利委托书

手续合格通知书

专利登记薄副本

个人

个人申请

身份

身份证

执照

身份证

专利证书证件

服务承诺

  • 证明

    确保拿到
    核准专利转让证明

  • 证明

    确保拿到
    转让受理通知书

  • 证明

    专利转让
    全程监控

  • 证明

    专利转让完成
    享受专利最低待遇

  • 证明

    免费客服热线
    快速回复客户问题

安阳高新区国家级示范生产力促进中心

浏览量: 1397547人

联系电话:0372-2110568

传真:0372-2110568

地址:河南省安阳市高新区弦歌大道与峨嵋大街交叉口向东100米路南科创大厦

www.ayipx.cn 版权所有 严禁转载!豫ICP备17028958号 公网安备 41050202000126 河南相映红信息技术有限公司 【后台管理】

0372-2110568